Am Forst Klövensteen4-Zimmer-Erdgeschoss-Wohnungim beliebten alten Dorfkern
Objektart
Adresse
Objektdaten
Informationen
Ausstattung
Details
1980 wurde diese solide Rotklinker-Wohnanlage mit Keller und drei Hauseingängen mit 28
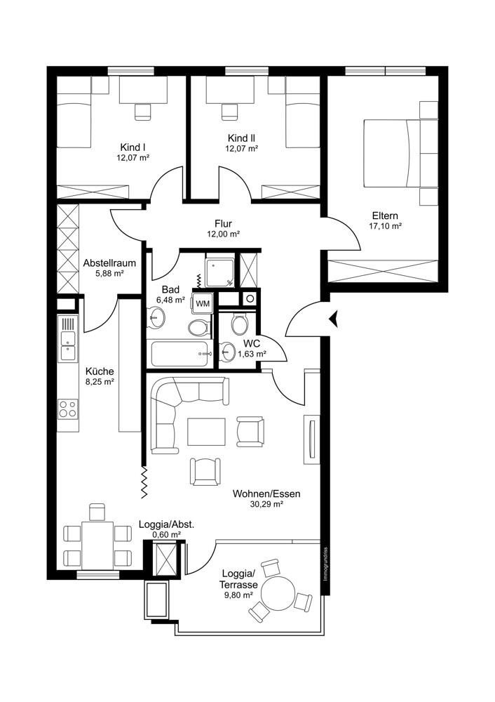
Die hier angebotene Wohnung verfügt über 4 Zimmer und ca. 110,97m² Wohnfläche.
Ein TG-Stellplatz (Nr. 54) kann separat erworben werden (eigenes Grundbuch).
Entgegen den Informationen aus dem noch gültigen Energieausweis wurde die Heizungsanlage im Jahr 2020 erneuert.
Weiterhin fanden in den vergangenen Jahre diverse Modernisierungsmaßnahmen statt (Fenster, Heizung, Dach, Balkone).
Das monatliche Wohngeld beträgt EUR 545 ,- für die Wohnung und ca. EUR 21,- für den TG-Stellplatz
Die großzügige Wohnung beinhaltet folgende Ausstattungsdetails:
Küche mit Sitzplatz und Vorratsraum
Bad mit Badewanne und Dusche
Gäste-WC
Separater Kellerraum (Nr. 25)
Tiefgaragenstellplatz käuflich erwerbbar á 15.000,-EUR
S/W-Terrasse mit kleinem Gärtchen
Individueller Grundriss - Rundgang um das BAD/WC
Die Wohnanlage befindet sich in sehr ruhiger und zentraler Lage im allseits beliebten alten Dorfkern von Schenefeld.
Das Stadtzentrum Schenefeld ist in wenigen Minuten fußläufig zu erreichen und lädt zum Kommunizieren, Bummeln und Einkaufen ein. Einkaufsmöglichkeiten für den täglichen Bedarf befinden sich in unmittelbarer Nachbarschaft. Der Anschluss an das Hamburger Verkehrsnetz ist mit der nahe liegenden Busstation gewährleistet.
Der Forst Klövensteen beginnt praktisch "vor der Tür". Die Elbe ist 5km entfernt.
Schulen und mehrere Kitas sind vor Ort und können zu Fuß oder mit dem Fahrrad bequem erreicht werden.
Es ist Glasfaser im Treppenhaus vorhanden.
Ansprechpartner
Telefax: 00494044809967
westermann@classic-immobilien.de
Energieausweis (Verbrauchsausweis)
111,60 kWh / (m²*a) Energieverbrauchskennwert
111,60 kWh / (m²*a) Energieverbrauchskennwert
111,60 kWh / (m²*a) Energieverbrauchskennwert
Weitere Informationen
| Wesentlicher Energieträger | GAS |
| Energieausweis gültig bis | 2027-08-23 |
| Energieausweis Jahrgang | ab dem 1.5.2014 |
| Energieausweis Werteklasse | D |
| Energieausweis Baujahr | 1996 |
| Energieausweis Gebäudeart | Wohngebäude |
| Befeuerung | Gas |
Ich bin damit einverstanden, dass mir Karten von Google angezeigt werden. Es gelten die Datenschutzbedingungen von Google (https://policies.google.com/privacy).
Ich bin einverstanden