Attraktives 5-Zimmer-Einfamilienhausmit Garten, Keller und geräumiger Garagenhalle im Ortskern
Objektart
Adresse
Objektdaten
Informationen
Ausstattung
Details
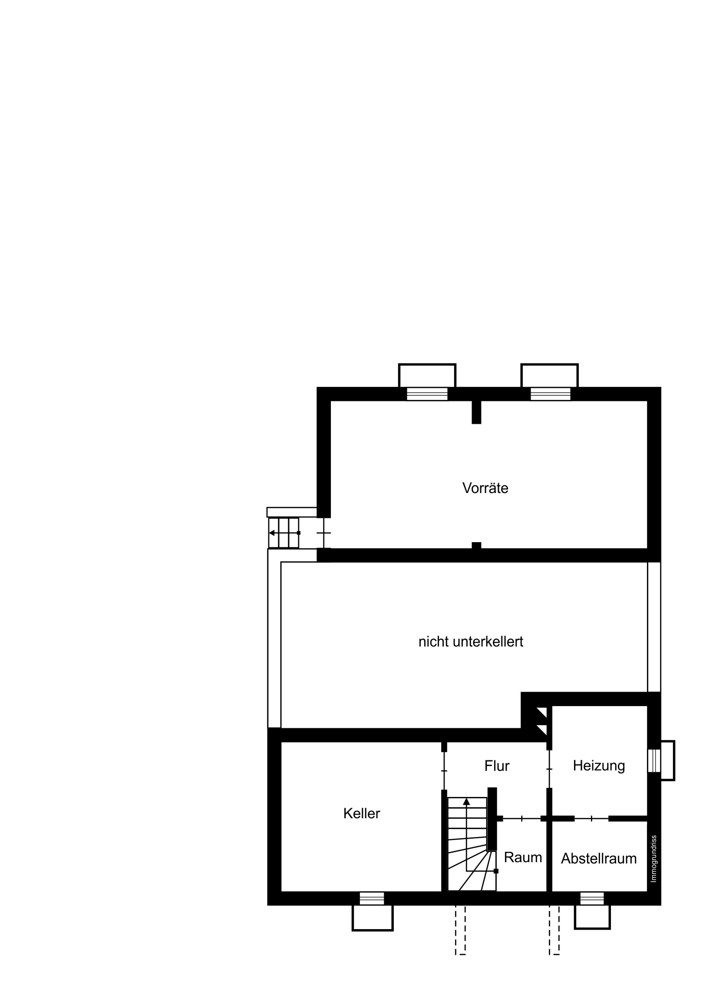
Attraktives 5 -Zi-Satteldach-Einfamilienhaus mit Teilkeller und einer sehr geräumigen Doppelgarage (9m x 6m) mit viel Platz für mehrere Fahrzeuge sowohl innerhalb der Garage als auch auf der Auffahrt.
1974 wurde der massive "Wintergarten"-Anbau (Flachdach) erstellt.
1975 wurde zusätzlich zu der bereits vorhandenen Teilunterkellerung die Terrasse und der Anbau unterkellert. Der so entandene Kellerraum ist von außen begehbar.
Die Beheizung erfolgt über eine Gaszentralheizung aus dem Jahr 1993, wobei der Brenner 2020 erneuert wurde.
2024 wurden die Innenräume frisch weiß gestrichen.
2025 wurde das Haus komplett weiß von außen gestrichen, Fenster und Türen in anthrazit.
Das Grundstück ist 586 m² groß und liegt in perfekter Sonnenausrichtung gen Süd-West.
Die Immobilie ist sehr gepflegt. Folgende Details möchten wir für Sie hervorheben:
- Weiße Einbauküche
- Wintergarten-Anbau (1974/1975)
- Kaminofen
- Granitbodenfliesen im gesamten Erdgeschoss
- Weißes Duschbad (bodengleich) im Erdgeschoss
- Weißes Duschbad im Obergeschoss
- Elektrische Rollläden
- Gepflasterte Auffahrt
- Elektrische Sonnen-Markisen
- Massive Doppelgarage (9m x 6m) mit Sektionaltor
- 3.000 Liter Regentank zur Gartenbewässerung
- Geräteschuppen im Garten
Ruhige und zentrale Lage in der Nähe des Ortszentrums Rellingen. Rellingen verfügt über eine intakte Infrastruktur und einen beliebten Ortskern mit vielen Geschäften des täglichen Bedarfs.
Rellingen ist eine Gemeinde mit ca. 15.000 Einwohnern im südlichen Schleswig-Holstein. Durch die direkte Nachbarschaft zur Freien und Hansestadt Hamburg im Westen und der Kreisstadt Pinneberg im Osten bietet Rellingen die idealen Voraussetzungen für Pendlerinnen und Pendler.
Die Gemeinde hat mit durch die Autobahnanschlussstellen eine perfekte Anbindung an die A23, über die man innerhalb von etwa 20 Minuten in die Hamburger Innenstadt oder ca. einer Stunde an die Nordsee gelangt. Durch die Anbindung an den HVV gibt es zahlreiche Buslinien in umliegende Gemeinden oder zu einer der drei S-Bahnhaltestellen von wo aus man mit der S- oder Regionalbahn innerhalb von 20-30 Minuten am Hamburger Hauptbahnhof ist.
Ansprechpartner
Telefax: 00494044809967
westermann@classic-immobilien.de
Energieausweis (Bedarfsausweis)
360,60 kWh / (m²*a) Endenergiebedarf
360,60 kWh / (m²*a) Endenergiebedarf
360,60 kWh / (m²*a) Endenergiebedarf
Weitere Informationen
| Wesentlicher Energieträger | GAS |
| Energieausweis gültig bis | 2033-12-29 |
| Energieausweis Jahrgang | ab dem 1.5.2014 |
| Energieausweis Werteklasse | H |
| Energieausweis Baujahr | 1993 |
| Energieausweis Gebäudeart | Wohngebäude |
| Heizung | Zentralheizung |
| Befeuerung | Gas |
Ich bin damit einverstanden, dass mir Karten von Google angezeigt werden. Es gelten die Datenschutzbedingungen von Google (https://policies.google.com/privacy).
Ich bin einverstanden