Objektart
Adresse
Objektdaten
Informationen
Ausstattung
Details
Unmittelbar am Deich gelegenes Kontor-Haus aus dem 20. Jahrhundert mit drei Wohneinheiten und Teilkeller. Das Haus wurde umfangreich und liebevoll kernsaniert (2011-2015).
Dabei entstanden diese reizvollen und individuellen Wohneinheiten. Das Gebäude verfügt über jeweils eigene Wohnungszugänge. Schnelles Internet (Glasfaseranschluss) ist vorhanden.
Die Wohnung 1 (Deichwohnung) verfügt über 2 Zimmer mit ca. 58,91m². Die Wohnung wird aktuell von der Eigentümerin bewohnt. Die Mieteinnahme ist fiktiv und beläuft sich auf EUR 720,00 x 12 =8.640,00 EUR.
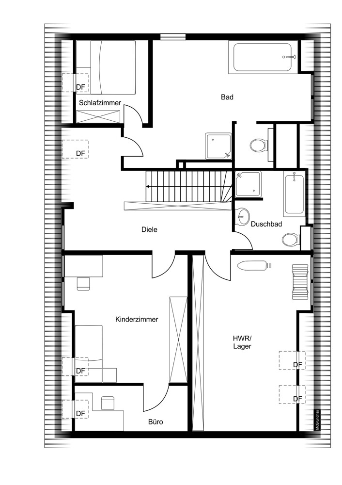
Wohnung 2 (Westwohnung) verfügt über 2 Zimmer mit ca. 63,17m² Wohnfläche und liegt im Erdgeschoss und Obergeschoss. Die Netto-Mieteinnahmen betragen aktuell EUR 632,42 x 12 =7.589,04 EUR.
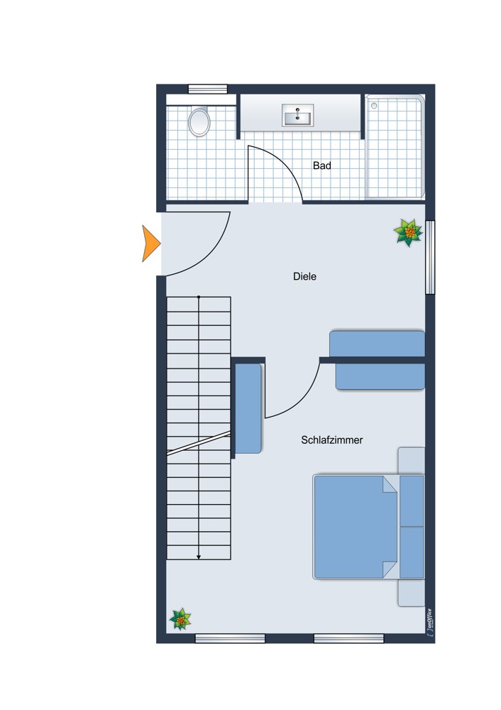
Wohnung 3 (OG+DG) ist die größte Wohnung und verfügt über drei Zimmer und ca. 157m². DieNettokaltmiete beträgtEUR 1466,00 x 12=17.592,00 EUR.
Weiterhin könnten für die beiden Stellplätze folgende Mieteinnahmen generiert werden:
fiktivEUR 70,00 x 12 = 840,00 EUR
Somit werden sich die Mieteinnahmen p.a. auf ca. EUR 34.661,04 belaufen.
Alle drei Wohnungen entsprechen dem Zeitgeist und sind komplett modernisiert worden. Folgende Details möchten wir hervorheben:
- Moderne weiße Einbauküchen
- Geschmachvolle Bäder
- Hochwertige Fußbodenbeläge
- LAN-Verkabelung in allen Wohnungen
- Zeitgemäße Haustechnik
Wohnung 1 (Deichwohnung):
- Alleinige Gartennutzung, eigene Garage
- Hinterer Hauseingang
- Alleinige Nutzung des Kellers
- Neuwertige weiße Einbauküche (2023)
- Granitfussböden
- Badezimmer mit bodentiefer Dusche
Wohnung 2 (Westwohnung):
- Seitlicher Hauseingang
- Offene Einbauküche mit Geschirrspüler, Cerankochfeld, Backofen, Kühlschrank
- Duschbad mit bodentiefer Dusche und Anschluss Waschmaschine
- Gäste-WC
- Französischer Balkon mit Blick
Wohnung 3 (OG+DG):
- Zwei lichtdurchflutete Wohnebenen
- Bester Wasser- und Marschblick in Haseldorf
- Exklusive Einbauküche im Landhausstil
- Luxus-Badezimmer im DG mit Regenschauer-Dusche und Badewanne sowie
LImestone +Mosaikfliesen
- Gäste WC mit grünem Marmor
- Zweites Vollbad+bodentiefe Dusche im DG
- Großer Hauswirtschaftsraum
- Boden aus fein geschliffenem Carrara Marmor
- Kaminofen
- Weiße Innentüren
- Sonniger Balkon mit Elbblick
Einzigartige Lage mit spektakulärem Blick über das Elbvorland und den alten Hafenlauf.
Haseldorf liegt etwa 15 Kilometer westlich von Hamburg in der Haseldorfer Marsch und ist eines der ältesten Dörfer Schleswig-Holsteins. Haseldorf bietet eine Menge für seine Besucher und Einwohner. Lange Spaziergänge am Deich verbunden mit einemn netten Restaurant- oder Cafebesuch, das Einkaufen von frischem Obst und Gemüse in einem der Bauernhäuser, das traditionelle Elbmaschenhaus sowie das Schloss, Golfspielen im Golfclub oder ein Besuch beim jährlich stattfindenenen Schleswig-Holstein-Musikfestival.
Die Buslinie 589 hält vor dem Haus und befördert Sie in ca. 20 Minuten z.B. zum S-Bahnhof Wedel.
Verkauft wird das Flurstück 52/1. Die Flurstücke 47 und 51 können genutzt und zu einem späteren Zeitpunkt erworben werden. Das Flurstück 110 ist nicht Kaufgegenstand, wird aber aktuell unentgeldlich genutzt. Eigentümer ist der Deich-und Sielverband.
Ansprechpartner
Telefax: 00494044809967
westermann@classic-immobilien.de
Energieausweis (Bedarfsausweis)
155,60 kWh / (m²*a) Endenergiebedarf
155,60 kWh / (m²*a) Endenergiebedarf
155,60 kWh / (m²*a) Endenergiebedarf
Weitere Informationen
| Wesentlicher Energieträger | GAS |
| Energieausweis gültig bis | 2033-03-13 |
| Energieausweis Jahrgang | ab dem 1.5.2014 |
| Energieausweis Werteklasse | E |
| Energieausweis Baujahr | 2011 |
| Energieausweis Gebäudeart | Wohngebäude |
| Befeuerung | Gas, Solar |
Ich bin damit einverstanden, dass mir Karten von Google angezeigt werden. Es gelten die Datenschutzbedingungen von Google (https://policies.google.com/privacy).
Ich bin einverstanden