Möbliertes Wohnen auf ZeitExklusive 3-Zimmer Wohnungmit perfekter Verkehrsanbindungin Halstenbek
Objektart
Adresse
Objektdaten
Informationen
Ausstattung
Details
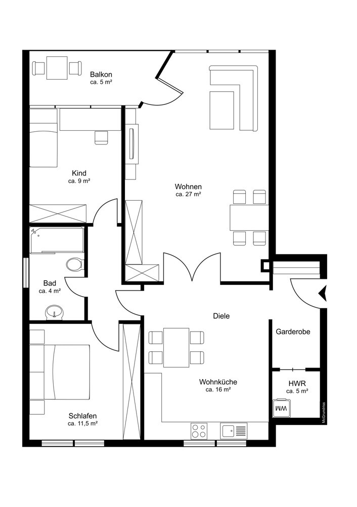
Die äußerst hochwertig möblierte Wohnung ist komplett eingerichtet und kann sofort bezogen werden. Folgende Ausstattungsmerkmale möchten wir darüber hinaus besonders hervorheben:
- Lift
- Offene anthrazitfarbene Einbauküche mit Sitzgelegenheit und Pütt und Pann
- Design-Bodenbelag
- Hauswirtschaftsraum mit Waschmaschine
- Exklusives Duschbad mit Echtglasabtrennung, Waschtisch, Spiegel und Fenster
- Sonnige und windgeschützte Loggia
- Kellerraum Nr. 10
- PKW-Außenstellplatz
Die Wohnung befindet sich in einer ruhigen Seitenstraße in zentraler Lage von Halstenbek, an der westlichen Stadtgrenze zu Hamburg. Die S-Bahn-Station Halstenbek (Linie S 3) ist in wenigen Gehminuten erreichbar. Einkaufsmöglichkeiten für den täglichen Bedarf, das Rathaus und der Wochenmarkt befinden sich im nahe gelegenen Ortskern. Halstenbek verfügt über sämtliche Schulzweige und ein vielfältiges Sport- und Freizeitangebot. Die Autobahn A23 bietet einen hervorragenden Anschluss an die Hamburger Innenstadt und zur A7 (Flensburg/Hannover).
Die Gesamtmiete beinhaltet bereits den Möblierungszuschlag und eine Pauschale für Nebenkosten (inkl. Heizkosten und W_LAN), sofern nicht anders angegeben.
Der persönliche Stromverbrauch ist nicht in der Pauschale enthalten.
Mindestmietzeit 1 Jahr
Ansprechpartner
Telefax: 00494044809967
westermann@classic-immobilien.de
Energieausweis (Verbrauchsausweis)
93,50 kWh / (m²*a) Energieverbrauchskennwert
93,50 kWh / (m²*a) Energieverbrauchskennwert
93,50 kWh / (m²*a) Energieverbrauchskennwert
Weitere Informationen
| Wesentlicher Energieträger | GAS |
| Energieausweis gültig bis | 2032-12-14 |
| Energieausweis Jahrgang | ab dem 1.5.2014 |
| Energieausweis Werteklasse | C |
| Energieausweis Baujahr | 1979 |
| Energieausweis Gebäudeart | Wohngebäude |
| Befeuerung | Gas |
Ich bin damit einverstanden, dass mir Karten von Google angezeigt werden. Es gelten die Datenschutzbedingungen von Google (https://policies.google.com/privacy).
Ich bin einverstanden