Leben in Halstenbek - Krupunder6,5-Zimmer-Einfamilienhausmit durchdachtem Grundriss
Objektart
Adresse
Objektdaten
Informationen
Ausstattung
Details
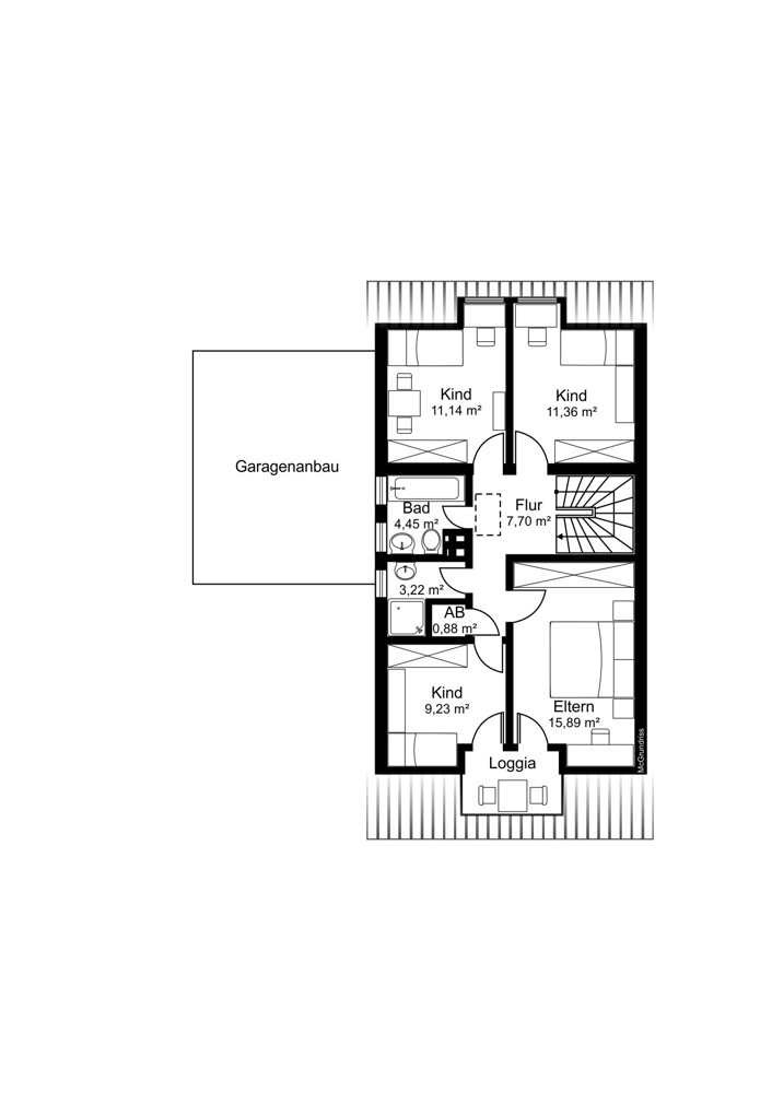
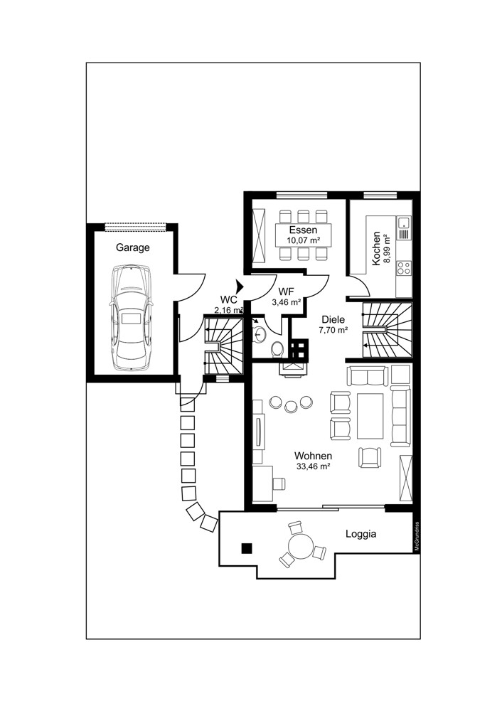
1980 wurde das sehr geräumige und individuelle Einfamilienhaus mit Vollkeller, Gaube, Balkon und Garage in konventioneller Bauweise erstellt. Das Haus verfügt über 6,5 Zimmer. Die Wohnfläche beträgt ca. 136m² zzgl. 20m² wohnliche Nutzfläche im Spitzboden. Der Vollkeller hat ca. 89m². Ein separates Treppenhaus mit Zugang zum Garten und zur Garage geht vom Keller ab.
Die Beheizung erfolgt über eine Gasbrennwertheizung aus dem Jahr 2004. Die letzte Wartung war 01/2025.
Das real geteilte Grundstück in S/W-Ausrichtung verfügt über 373m² und bietet absolute Privatsphäre.
Die Ausstattung ist gepflegt, aber modernisierungsbedürftig. Folgende Details möchten wir gern besonders hervorheben:
- Vollbad (OG)
- Duschbad (OG)
- Gäste-WC
- Helle Einbauküche mit neuwertigem Kühlschrank (NEFF)
. Elektrische Rollläden
- Neuwertiges Garagentor
- Haustür und Fenster im Erdgeschoss erneuert (2012)
Diese ruhige und zentrale Wohnlage gehört zu den beliebtesten Wohngegenden in Halstenbek (OT Krupunder). Schulen, Kindergärten und das Nahversorgungszentrum Krupunder mit seinem S-Bahnanschluss sind fußläufig und/oder mit dem Fahrrad schnell erreichbar.
Die Autobahnen A7 und A23 sichern Ihnen schnelle Wege in die City, zum Flughafen oder gen Norden und Süden.
Ansprechpartner
Telefax: 00494044809967
westermann@classic-immobilien.de
Energieausweis (Bedarfsausweis)
152,60 kWh / (m²*a) Endenergiebedarf
152,60 kWh / (m²*a) Endenergiebedarf
152,60 kWh / (m²*a) Endenergiebedarf
Weitere Informationen
| Wesentlicher Energieträger | GAS |
| Energieausweis gültig bis | 2035-11-17 |
| Energieausweis Jahrgang | ab dem 1.5.2014 |
| Energieausweis Werteklasse | E |
| Energieausweis Baujahr | 2004 |
| Energieausweis Gebäudeart | Wohngebäude |
| Befeuerung | Gas |
Ich bin damit einverstanden, dass mir Karten von Google angezeigt werden. Es gelten die Datenschutzbedingungen von Google (https://policies.google.com/privacy).
Ich bin einverstanden